The Waterlili Five-Star Hotel & Resort is a climate-conscious hospitality landmark set within a 58.5-acre mixed-use masterplan in Narayanganj, Bangladesh. Located just 2000 feet from the Shitalakhya River, the project is positioned to harness the prevailing southeastern breeze—an environmental asset that informs both massing and orientation.

The building’s angular form is strategically sculpted to enhance cross-ventilation across key zones, while shaping shaded terraces and internal courtyards. These passive design strategies enable comfortable thermal conditions without heavy reliance on mechanical systems. Elevated ceiling heights of 24 feet on the 4th and 11th floors accommodate public amenities including cafés, swimming pools, lounges, and fitness areas—introducing volumetric relief and spatial generosity at multiple elevations.

The façade system integrates performance-driven glazing and solar protection. Full-height low-E double-glass panels on the north, east, and south ensure abundant daylight while minimizing heat gain. Conversely, the west facade is kept predominantly solid, minimizing openings to mitigate afternoon heat exposure.

At ground level, a colonnade of exposed concrete columns elevates the building, creating breezy, shaded public zones. These structural elements draw inspiration from traditional South Asian verandas and religious courtyards—bringing a rhythm of openness, transparency, and cultural continuity to the project’s base.

Environmental sustainability is deeply embedded in the hotel’s design. Green roofs, rainwater harvesting, and the use of regional, low-carbon materials help reduce the project’s ecological footprint.

As part of its ecological design ethos, the hotel incorporates bird-friendly strategies to protect avian species native to the river-adjacent landscape. UV-reflective patterns and high-contrast fritting are applied to large glazed surfaces to deter bird collisions, especially during migratory periods. Landscape planting features native and nectar-producing flora to attract birds and support local biodiversity. Night lighting is shielded and downward-focused to prevent disorientation of nocturnal species—balancing visual ambiance with wildlife protection.

Together, these measures establish the Waterlili Hotel as a modern tropical hospitality experience—rooted in climate logic, cultural memory, and multispecies coexistence. It not only offers environmental comfort and architectural clarity but also reflects a thoughtful integration with the riverine ecology of Bangladesh.

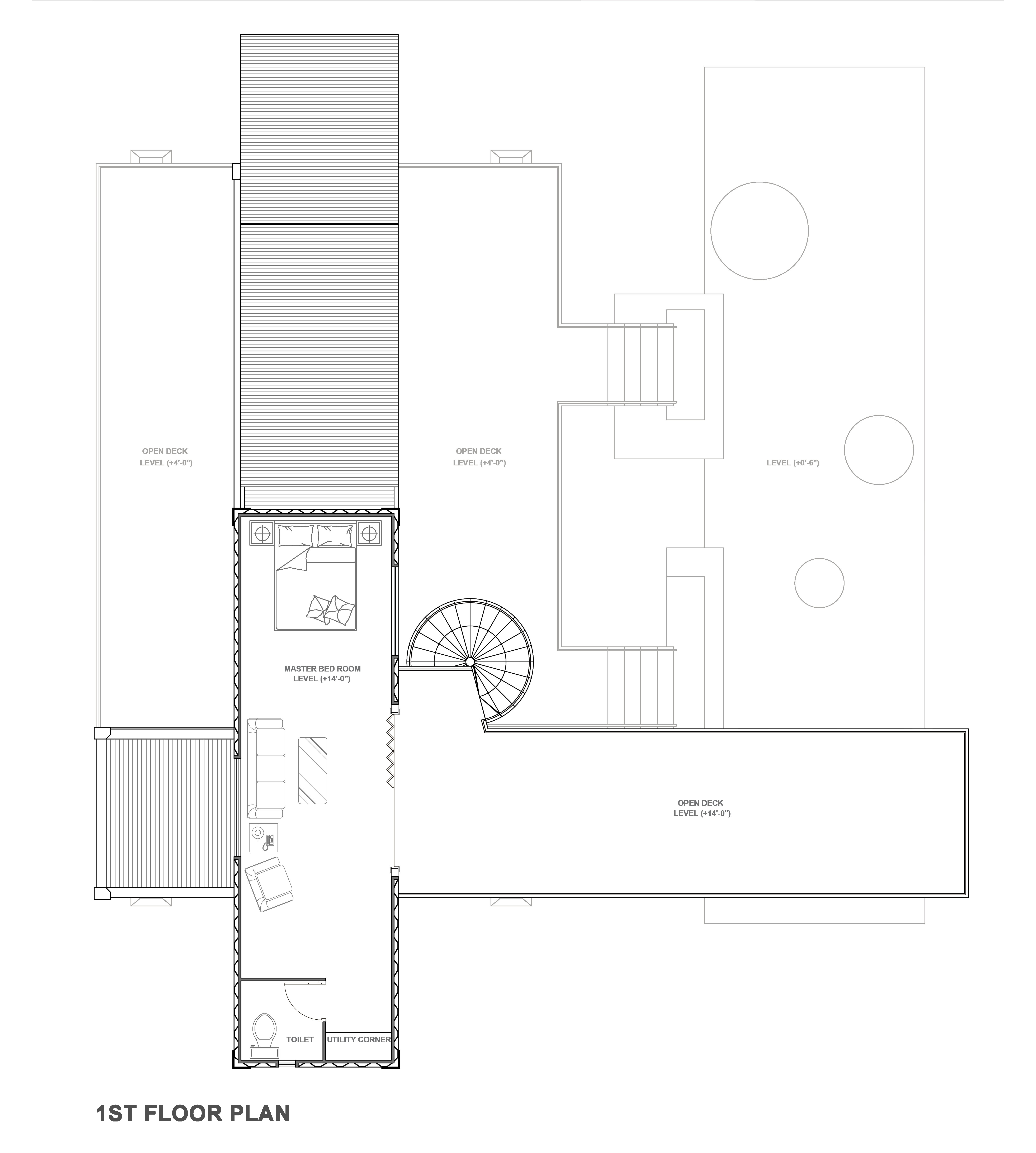
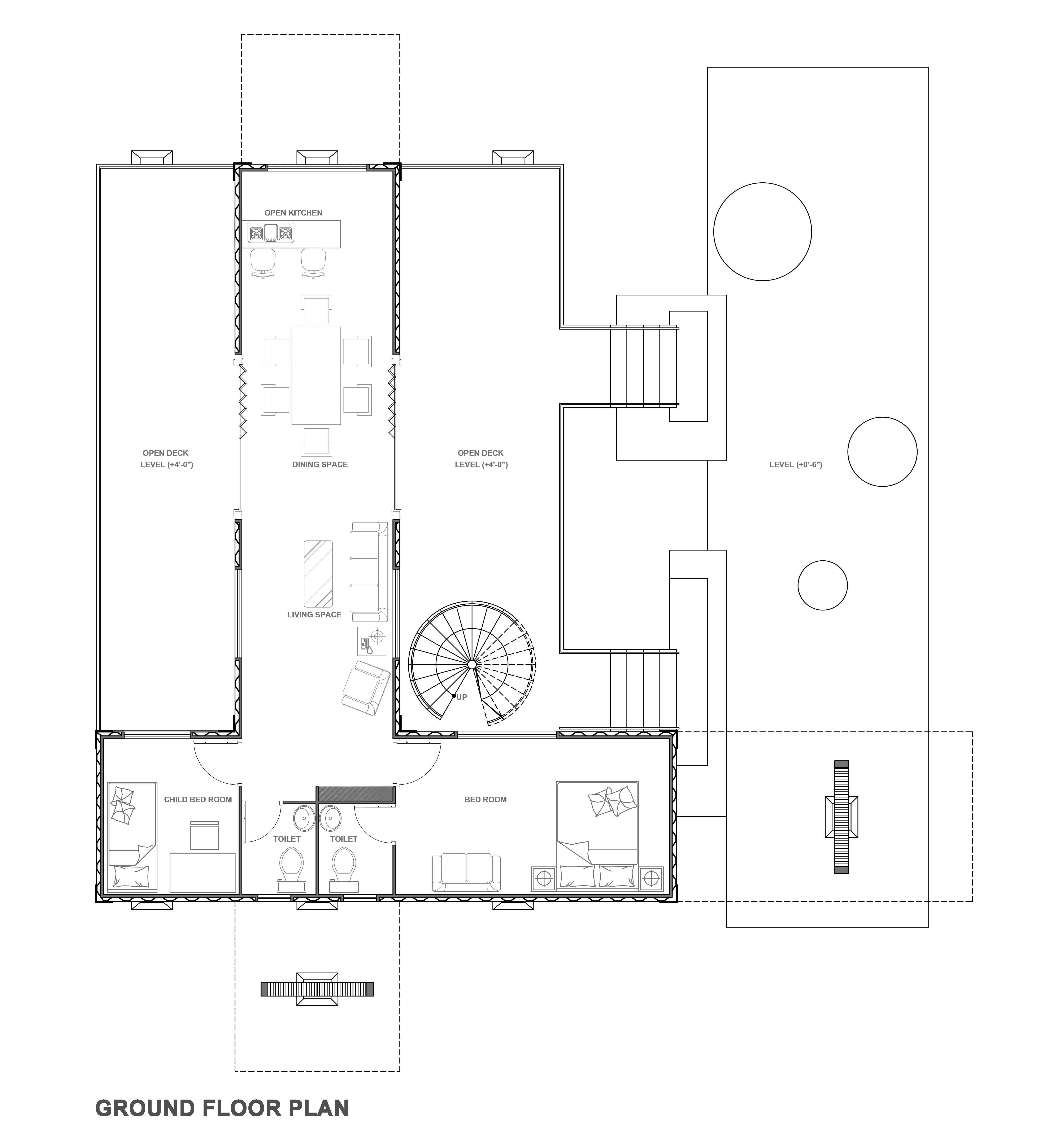
Container Cottage Retreat is a climate-responsive, modular architecture project situated in a green buffer zone beside a five-star hotel in Bangladesh. Designed using recycled shipping containers, the cottage units integrate sustainability, mobility, and low-impact construction. Each unit is elevated 3 feet above ground level to protect against flooding and enhance passive cooling.

The design follows a linear and courtyard-based arrangement to promote natural ventilation and interaction with landscape. Central green courtyards between the cottages allow cross-breezes to flow through the units while offering visual and environmental relief. Large verandas on both sides of each unit create shaded transitional zones that reduce heat gain and enhance thermal comfort.

The upper-level containers are carefully staggered, creating a split-level system that increases airflow and spatial richness. Spiral staircases connect the levels while encouraging interaction and movement through green spaces.

PU Foam Insulation: 2-inch thick closed-cell PU foam is applied to the internal walls and roof surfaces, significantly reducing thermal transmission in the hot-humid climate of Bangladesh.
Solar Panel Roofs: Tilted steel frames carry solar panels above each unit, acting as both energy generators and shading devices to reduce rooftop heat gain.
Elevated Structure: Each cottage is raised on columns, minimizing contact with hot ground surfaces and enabling natural ventilation underneath.
Cross Ventilation Strategy: All rooms are flanked by verandas with large operable openings, maximizing airflow and indoor comfort.
Local Materials & Lightweight Construction: Interior finishes include gypsum board and recycled timber, while exterior shading elements incorporate bamboo and creeper-covered trellises.

This project demonstrates how reused containers can become energy-efficient, low-impact living spaces in tropical climates through simple, intelligent design strategies rooted in passive cooling, landscape integration, and modularity.